Plano De Instalación Eléctrica Para Viviendas
En 2023, la tecnología eléctrica se ha desarrollado aún más y los diseños modernos para viviendas están cada vez mejor planificados. Cuando se trata de instalaciones eléctricas en viviendas, es extremadamente importante utilizar un plan de instalación eléctrica para garantizar la seguridad y la eficiencia. Esto significa que es necesario tener un plan de instalación eléctrica para vivienda adecuado para cada vivienda. Esta guía le explicará cómo diseñar un plan de instalación eléctrica para viviendas.
¿Por qué es importante un Plan de Instalación Eléctrica para Viviendas?
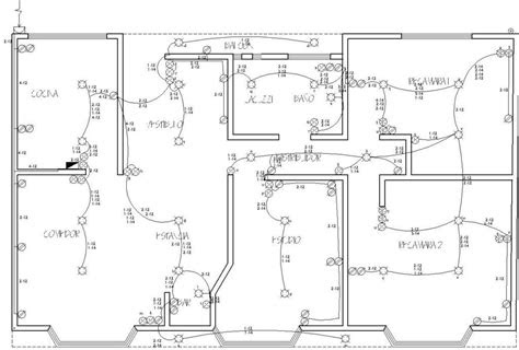
Un plan de instalación eléctrica para viviendas es un documento que describe la ubicación de los dispositivos eléctricos, los cables y los circuitos necesarios para una instalación eléctrica segura en una vivienda. Esta información es necesaria para garantizar que los dispositivos eléctricos funcionen correctamente y seguro. Esto significa que es importante diseñar un plan de instalación eléctrica para viviendas antes de iniciar cualquier trabajo de reparación o instalación eléctrica en una vivienda.
Pasos para el Diseño de un Plan de Instalación Eléctrica para Viviendas
Para diseñar un plan de instalación eléctrica para vivienda, hay algunos pasos que se deben seguir:
- Calcule la cantidad de electricidad necesaria para la vivienda. Esto significa determinar la cantidad de electricidad necesaria para alimentar todos los dispositivos eléctricos en la vivienda.
- Determinar el número de circuitos necesarios para alimentar los dispositivos eléctricos. Esto depende del número de dispositivos eléctricos en la vivienda.
- Determine la ubicación de los interruptores, los dispositivos de protección de sobrecorriente y los fusibles. Debe asegurarse de que estos dispositivos estén ubicados en lugares seguros.
- Diseñe un esquema de la instalación eléctrica de la vivienda. Esto debe incluir la ubicación de los dispositivos eléctricos, los cables y los circuitos.
- Determine la ubicación de los cables eléctricos y los circuitos en la vivienda. Esto significa determinar la ubicación de los cables y los circuitos para cada dispositivo eléctrico.
- Revise el plan de instalación eléctrica para vivienda para asegurarse de que esté correcto. Asegúrese de que el plan de instalación eléctrica cumple con todas las normas y regulaciones locales.
Consejos para el Diseño de un Plan de Instalación Eléctrica para Viviendas
Cuando se trata de diseñar un plan de instalación eléctrica para viviendas, hay algunos consejos útiles para tener en cuenta:
- Asegúrese de que el plan de instalación eléctrica para viviendas esté diseñado de acuerdo con las normas y regulaciones locales.
- Asegúrese de tener suficientes circuitos para alimentar todos los dispositivos eléctricos en la vivienda.
- Asegúrese de que los interruptores, los dispositivos de protección de sobrecorriente y los fusibles estén ubicados en lugares seguros.
- Asegúrese de que todos los cables y circuitos estén correctamente conectados y aislados para evitar descargas eléctricas.
- Asegúrese de que todos los dispositivos eléctricos estén correctamente identificados para evitar errores de cableado.
- Asegúrese de que el plan de instalación eléctrica para vivienda sea fácil de entender para cualquier persona que tenga que realizar trabajos de reparación o instalación eléctrica en la vivienda.
Ventajas de un Plan de Instalación Eléctrica para Vivienda
Un plan de instalación eléctrica para vivienda ofrece una serie de ventajas, incluyendo:
- Un plan de instalación eléctrica para viviendas garantiza la seguridad de los dispositivos eléctricos.
- Un plan de instalación eléctrica para viviendas garantiza la eficiencia de los dispositivos eléctricos.
- Un plan de instalación eléctrica para viviendas facilita la identificación de los dispositivos eléctricos.
- Un plan de instalación eléctrica para viviendas facilita la localización de los cables eléctricos y los circuitos.
- Un plan de instalación eléctrica para viviendas facilita el trabajo de reparación o instalación eléctrica en la vivienda.
- Un plan de instalación eléctrica para viviendas ayuda a ahorrar energía y dinero.
Conclusion
Un plan de instalación eléctrica para viviendas es un documento muy importante para garantizar la seguridad y la eficiencia de la instalación eléctrica en una vivienda. Diseñar un plan de instalación eléctrica para viviendas es un proceso que involucra varios pasos y consejos. Un plan de instalación eléctrica para viviendas ofrece una serie de ventajas, como la seguridad, la eficiencia, la identificación de los dispositivos eléctricos, la localización de los cables y los circuitos, el trabajo de reparación o instalación eléctrica en la vivienda y el ahorro de energía y dinero. Por lo tanto, es importante tener un plan de instalación eléctrica para viviendas adecuado para cada vivienda.
En resumen, un plan de instalación eléctrica para viviendas es un documento importante para garantizar la seguridad y la eficiencia de la instalación eléctrica en una vivienda. Por lo tanto, es importante tener un plan de instalación eléctrica para viviendas adecuado para cada vivienda.




Post a Comment for "Plano De Instalación Eléctrica Para Viviendas"